Torrevieja / Costa Blanca Południe Bungalowy · Rynek pierwotny

259.000€
#Ref. NB-64776

Torrevieja / Costa Blanca Południe Bungalowy · Rynek pierwotny

  • Cena €259.000
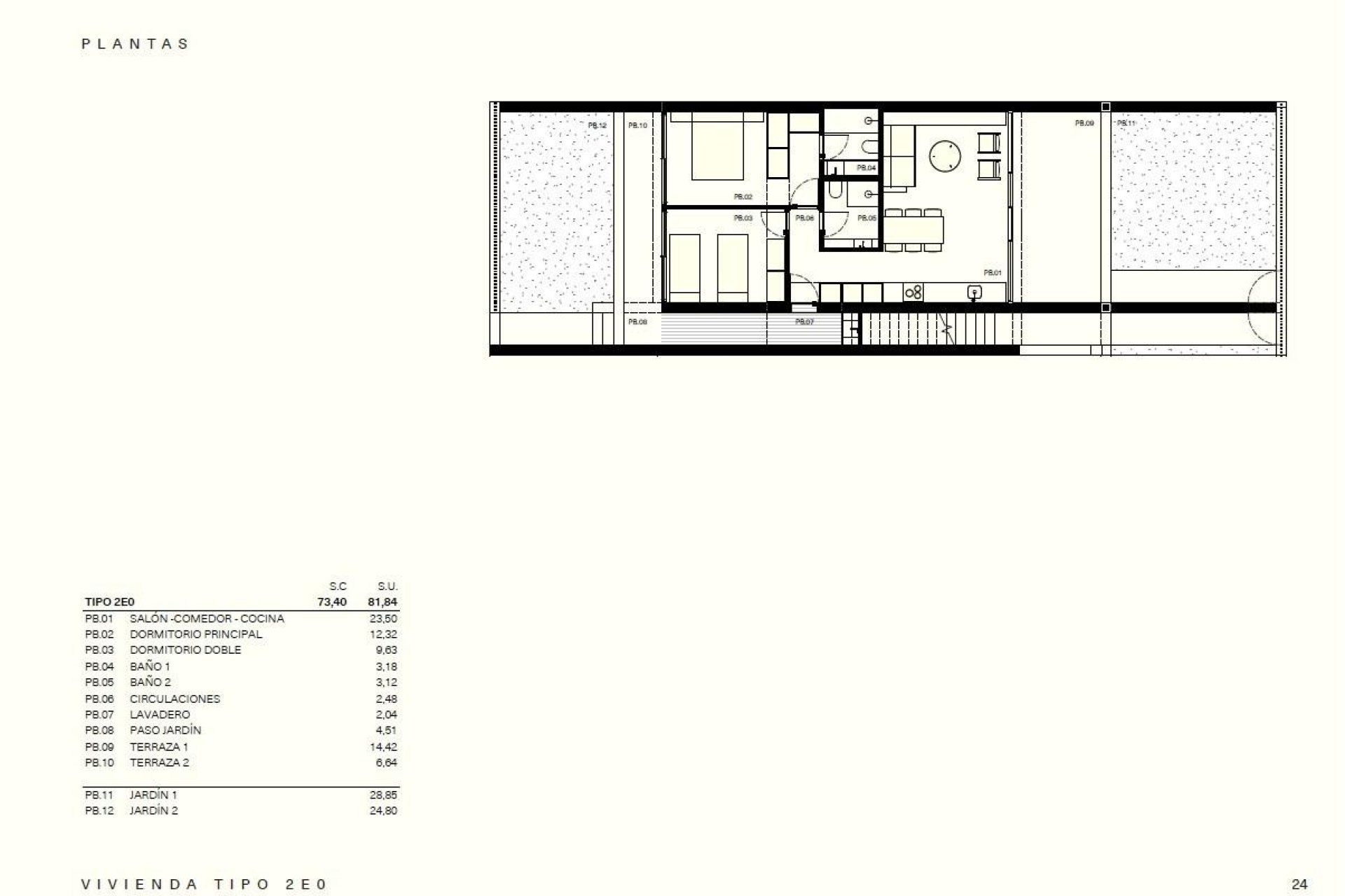
  • Powierzchnia 81 m2
  • Działka 53m2
  • Sypialnie 2
  • Łazienki 2
  • Basen Tak

Nowe apartamenty mieszkalne w Los Balcones, Torrevieja

    Ref.:NB-64776
    Bungalowy
    Rynek pierwotny

Szczegóły oferty

Sypialnie 2
Łazienki 2
Powierzchnia 81m2
Przydatne 73m2
Działka 53m2
Basen Tak
Odległość od plaży3500 Mts.
Communal Pool
Gated
Number of Parking Spaces: 1
Near Schools
Near Commercial Center
Location: Coastal, Urbanisation
Air Conditioning: Pre-Installed
Double Bedrooms: 2
Garden
Terrace: 20 Msq.
Useable Build Space: 73 Msq.
Beach: 3500 Meters
Parking - Space
Storage / Trastero

Lokalizacja

Złóż zapytanie

Responsable del tratamiento: Cosmo Homes 1, Finalidad del tratamiento: Gestión y control de los servicios ofrecidos a través de la página Web de Servicios inmobiliarios, Envío de información a traves de newsletter y otros, Legitimación: Por consentimiento, Destinatarios: No se cederan los datos, salvo para elaborar contabilidad, Derechos de las personas interesadas: Acceder, rectificar y suprimir los datos, solicitar la portabilidad de los mismos, oponerse altratamiento y solicitar la limitación de éste, Procedencia de los datos: El Propio interesado, Información Adicional: Puede consultarse la información adicional y detallada sobre protección de datos Aquí.
WhatsApp