Torrevieja / Costa Blanca Sur Bungalow · Obra nueva

259.000€
#Ref. NB-64776

Torrevieja / Costa Blanca Sur Bungalow · Obra nueva

  • Precio €259.000
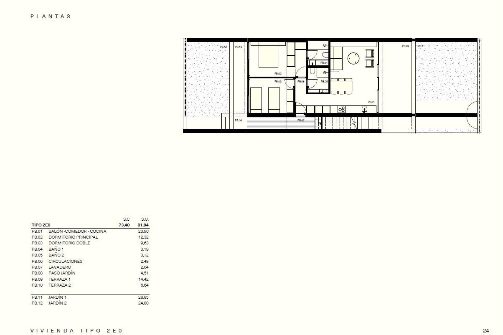
  • Construidos 81 m2
  • Parcela 53m2
  • Habitaciones 2
  • Baños 2
  • Piscina

Apartamentos residenciales de nueva construcción en Los Balcones, Torrevieja

    Ref.:NB-64776
    Bungalow
    Obra nueva

Características

Habitaciones 2
Baños 2
Construidos 81m2
Útiles 73m2
Parcela 53m2
Piscina
Distancia a la playa3500 Mts.
Communal Pool
Gated
Number of Parking Spaces: 1
Near Schools
Near Commercial Center
Location: Coastal, Urbanisation
Air Conditioning: Pre-Installed
Double Bedrooms: 2
Garden
Terrace: 20 Msq.
Useable Build Space: 73 Msq.
Beach: 3500 Meters
Parking - Space
Storage / Trastero

Localización

Realizar una consulta

Responsable del tratamiento: Cosmo Homes 1, Finalidad del tratamiento: Gestión y control de los servicios ofrecidos a través de la página Web de Servicios inmobiliarios, Envío de información a traves de newsletter y otros, Legitimación: Por consentimiento, Destinatarios: No se cederan los datos, salvo para elaborar contabilidad, Derechos de las personas interesadas: Acceder, rectificar y suprimir los datos, solicitar la portabilidad de los mismos, oponerse altratamiento y solicitar la limitación de éste, Procedencia de los datos: El Propio interesado, Información Adicional: Puede consultarse la información adicional y detallada sobre protección de datos Aquí.
WhatsApp