Alicante / Costa Blanca North Villa · New Build

498.000€
#Ref. NB--79119

Alicante / Costa Blanca North Villa · New Build

  • Price €498.000
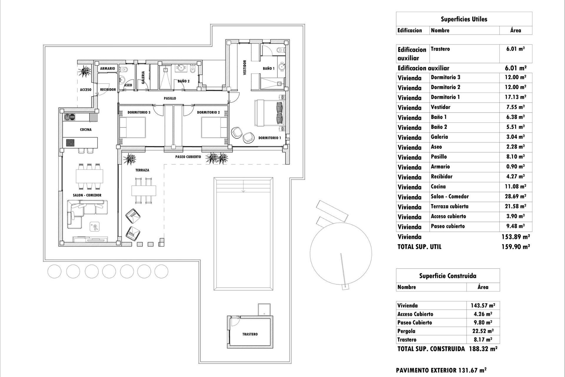
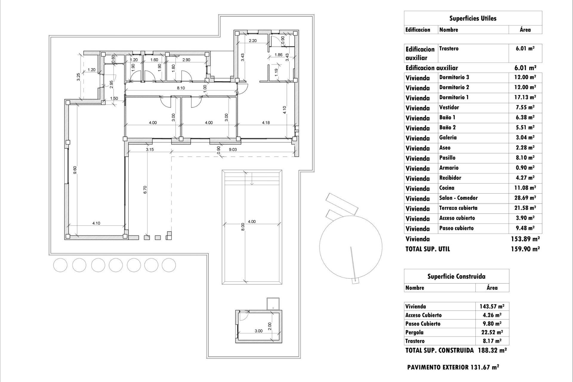
  • Built 188 m2
  • Plot 13.172m2
  • Bedrooms 3
  • Bathrooms 3
  • Pool Yes

Newly built villas located in the municipality of Aspe.

    Ref.:NB--79119
    Villa
    New Build

Features

Bedrooms 3
Bathrooms 3
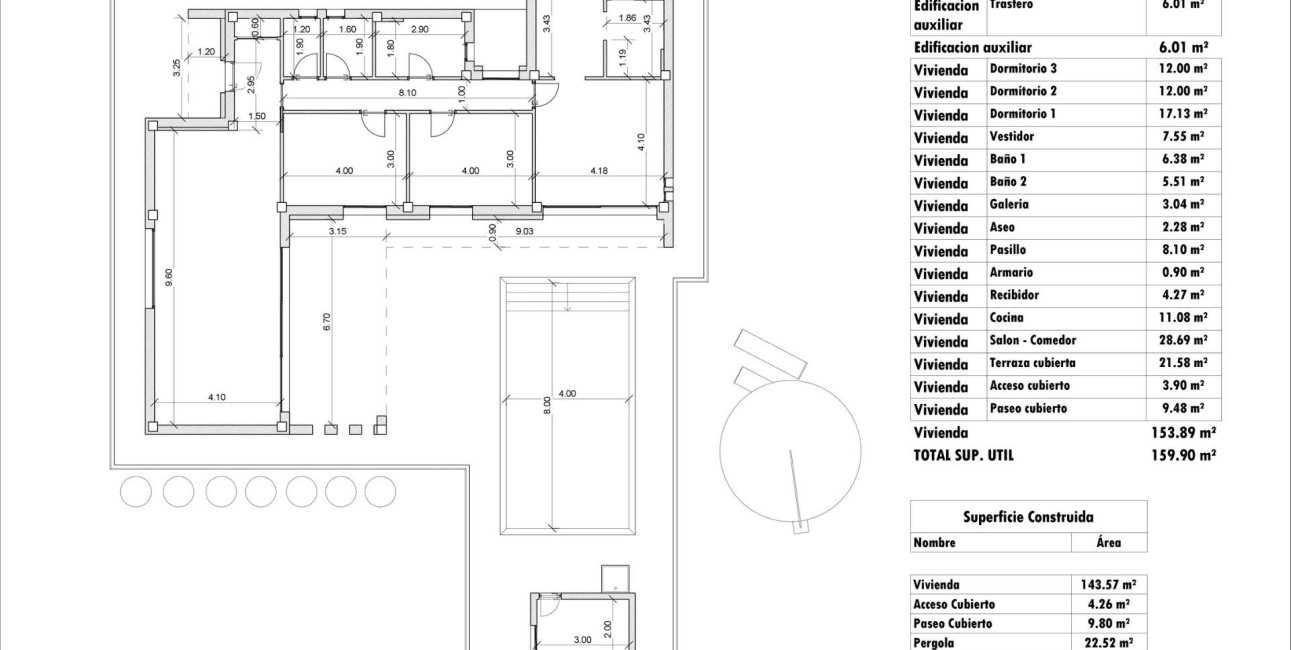
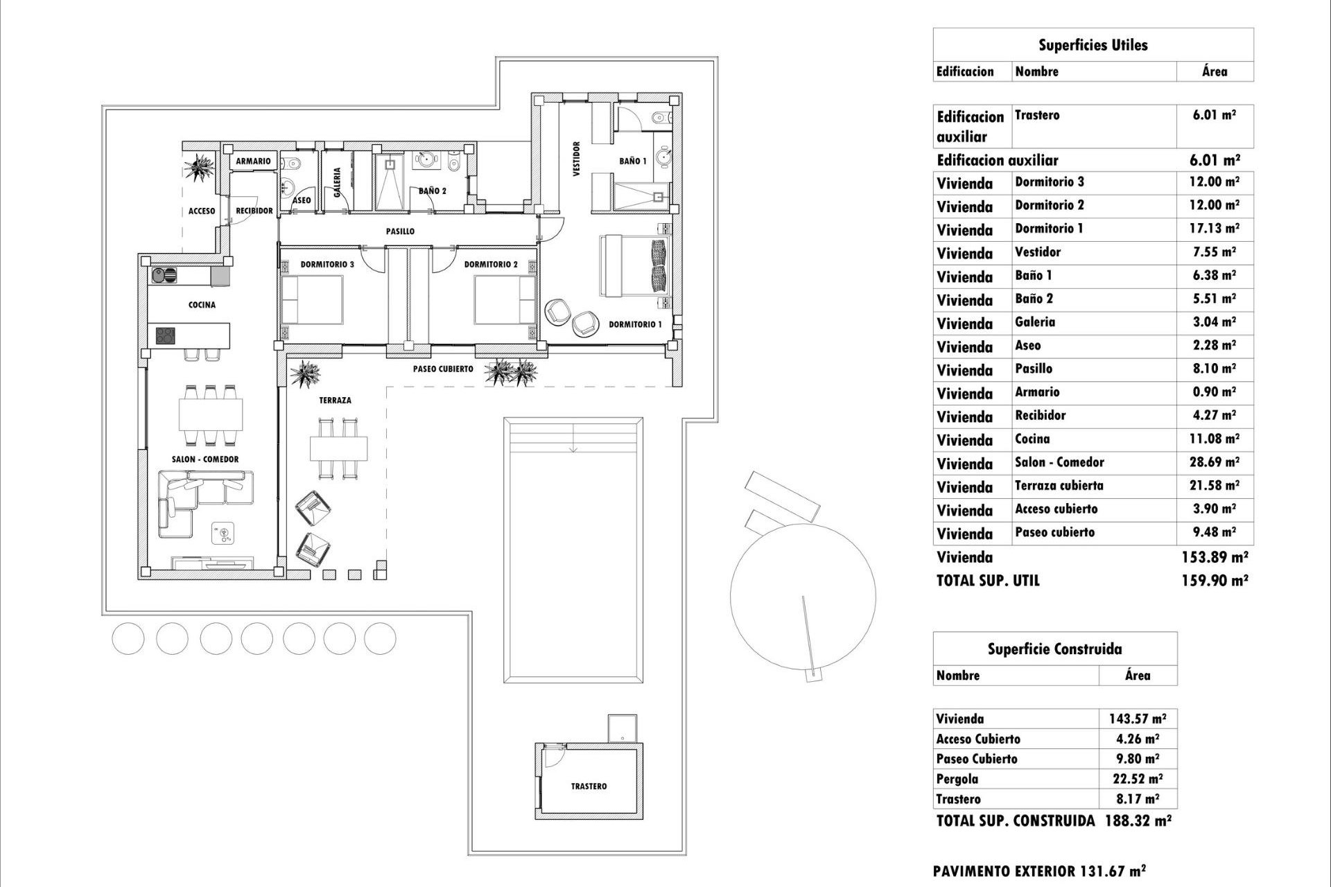
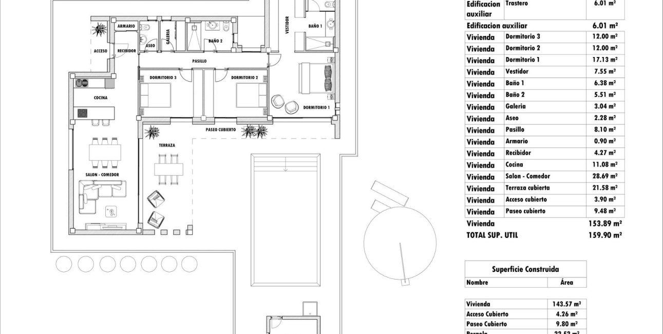
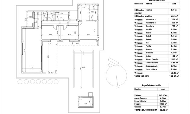
Built 188m2
Useful 159m2
Plot 13.172m2
Pool Yes
Distance to beach25000 Mts.
Parking - Space
Useable Build Space: 159 Msq.
Location: Mountain
Storage / Trastero
Private pool
Gated
Number of Parking Spaces: 1
Near Schools
Double Bedrooms: 3
Air Conditioning: Pre-Installed
Garden
Terrace: 36 Msq.
Beach: 25000 Meters

Location

Make an enquiry

Responsable del tratamiento: Cosmo Homes 1, Finalidad del tratamiento: Gestión y control de los servicios ofrecidos a través de la página Web de Servicios inmobiliarios, Envío de información a traves de newsletter y otros, Legitimación: Por consentimiento, Destinatarios: No se cederan los datos, salvo para elaborar contabilidad, Derechos de las personas interesadas: Acceder, rectificar y suprimir los datos, solicitar la portabilidad de los mismos, oponerse altratamiento y solicitar la limitación de éste, Procedencia de los datos: El Propio interesado, Información Adicional: Puede consultarse la información adicional y detallada sobre protección de datos Aquí.
WhatsApp