Fuente Álamo / Costa Calida - Inland Villa · New Build

320.000€
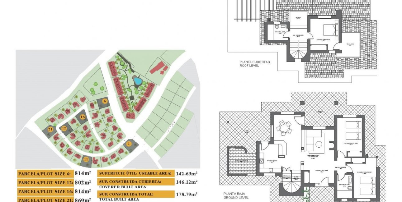
#Ref. NB--57939

Fuente Álamo / Costa Calida - Inland Villa · New Build

  • Price €320.000
  • Built 178 m2
  • Plot 850m2
  • Bedrooms 3
  • Bathrooms 2

KEY READY VILLA IN FUENTE ALAMO, MURCIA

    Ref.:NB--57939
    Villa
    New Build

Features

Bedrooms 3
Bathrooms 2
Built 178m2
Useful 148m2
Plot 850m2
Distance to beach7500 Mts.
Solarium: Yes
Air Conditioning: Pre-Installed
Garden
Key Ready
Location: Rural, Urbanisation
Terrace: 60 Msq.
Parking - Space
Beach: 7500 Meters
Useable Build Space: 148 Msq.
Storage / Trastero
Gated
Number of Parking Spaces: 1
Double Bedrooms: 3

Location

Make an enquiry

Responsable del tratamiento: Cosmo Homes 1, Finalidad del tratamiento: Gestión y control de los servicios ofrecidos a través de la página Web de Servicios inmobiliarios, Envío de información a traves de newsletter y otros, Legitimación: Por consentimiento, Destinatarios: No se cederan los datos, salvo para elaborar contabilidad, Derechos de las personas interesadas: Acceder, rectificar y suprimir los datos, solicitar la portabilidad de los mismos, oponerse altratamiento y solicitar la limitación de éste, Procedencia de los datos: El Propio interesado, Información Adicional: Puede consultarse la información adicional y detallada sobre protección de datos Aquí.
WhatsApp