Luksusowy nowoczesny dom w sercu Moraira-Teulada: współczesny śródziemnomorski wypoczynek
Odkryj wspaniały dom jednorodzinny położony w malowniczym miasteczku Moraira-Teulada na Costa Blanca. Ta nowoczesna nieruchomość oferuje wyjątkowe połączenie luksusu, komfortu i naturalnego piękna, położona na dużej działce, która zapewnia zarówno prywatność, jak i panoramiczne widoki na otaczający śródziemnomorski krajobraz. Moraira-Teulada słynie z uroczej nadmorskiej atmosfery, tętniącej życiem lokalnej kultury i łatwego dostępu do kluczowych udogodnień.
Doskonałość architektoniczna z panoramicznym widokiem
Ten architektonicznie zaprojektowany dom jest nowoczesnym arcydziełem, które harmonijnie łączy się z naturalnym otoczeniem. Zbudowany ze zbrojonego betonu i podkreślony drewnianymi detalami, projekt domu płynnie integruje duże szklane panele, aby zmaksymalizować naturalne światło i oprawić zapierające dech w piersiach widoki na morze i bujną zieleń. Dom jest zbudowany na różnych tarasach, uzupełniając naturalne nachylenie terenu i oferując niezakłócone widoki pod każdym kątem.
Przestronny układ wnętrz dla eleganckiego życia
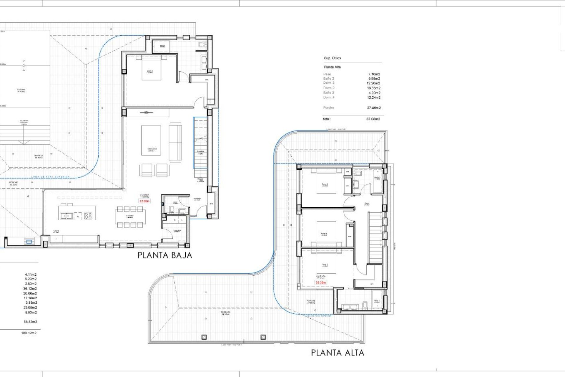
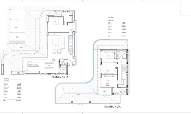
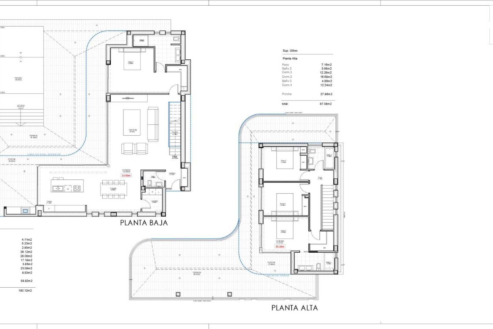
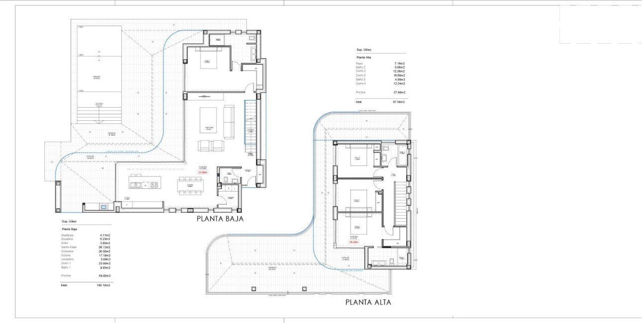
Parter jest sercem tego domu, z przestronną częścią dzienną na otwartym planie o powierzchni 36 m², która łączy się z rozległym tarasem zewnętrznym o powierzchni 81 m². Wysokiej klasy kuchnia i jadalnia o powierzchni 20 m² są wyposażone w najnowocześniejsze urządzenia, dzięki czemu idealnie nadają się zarówno do codziennego życia, jak i rozrywki. Na piętrze znajduje się główna sypialnia z garderobą, łazienką i dostępem do prywatnego tarasu. Trzy dodatkowe sypialnie, każda z własną łazienką i tarasem, zapewniają luksusowy komfort członkom rodziny lub gościom.
Wyjątkowe życie na świeżym powietrzu i basen bez krawędzi
Przestrzenie zewnętrzne zostały zaprojektowane z myślą o relaksie i rozrywce, w tym rozległy taras o powierzchni 81 m², idealny do spożywania posiłków na świeżym powietrzu lub wylegiwania się w śródziemnomorskim słońcu. Taras prowadzi do oszałamiającego basenu bez krawędzi, który łączy się z horyzontem, tworząc spokojną oazę. Starannie zagospodarowany ogród, wypełniony rodzimymi roślinami i drzewami, podkreśla spokojną atmosferę domu i zapewnia dodatkową prywatność.
Zrównoważone i energooszczędne funkcje
Ta nieruchomość jest wyposażona w zrównoważone funkcje, w tym zaawansowaną pompę ciepła powietrze-woda, ogrzewanie podłogowe i klimatyzację kanałową. Wysokowydajne okna i izolacja zapewniają efektywność energetyczną i komfort przez cały rok.
Doskonała lokalizacja w pobliżu kluczowych udogodnień
Lotnisko Alicante: 90 km
Pole golfowe La Sella: 15 km
Port Moraira: 2 km
Centra handlowe: 5 km
Doświadcz nowoczesnego luksusu i spokoju w tym wyjątkowym domu, doskonale zlokalizowanym w poszukiwanym regionie Moraira-Teulada.
337