Orihuela Costa / Costa Blanca Sur Apartamento / piso · Obra nueva

469.000€
#Ref. NB-99812

Orihuela Costa / Costa Blanca Sur Apartamento / piso · Obra nueva

  • Precio €469.000
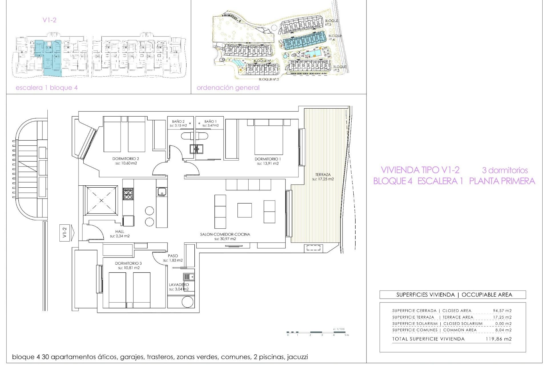
  • Construidos 94 m2
  • Habitaciones 3
  • Baños 2
  • Piscina

RESIDENCIAL DE OBRA NUEVA EN PLAYA FLAMENCA !!!

    Ref.:NB-99812
    Apartamento / piso
    Obra nueva

Características

Habitaciones 3
Baños 2
Construidos 94m2
Útiles 84m2
Piscina
Distancia a la playa500 Mts.
Elevator/Lift
Communal Pool
Gated
Number of Parking Spaces: 1
Near Trees
Near Schools
Near Commercial Center
Near Bus Route
Double Bedrooms: 3
Location: Coastal, Urbanisation
Air Conditioning: Pre-Installed
Useable Build Space: 84 Msq.
Terrace: 17 Msq.
Beach: 500 Meters
Parking - Space
Storage / Trastero

Localización

Realizar una consulta

Responsable del tratamiento: Cosmo Homes 1, Finalidad del tratamiento: Gestión y control de los servicios ofrecidos a través de la página Web de Servicios inmobiliarios, Envío de información a traves de newsletter y otros, Legitimación: Por consentimiento, Destinatarios: No se cederan los datos, salvo para elaborar contabilidad, Derechos de las personas interesadas: Acceder, rectificar y suprimir los datos, solicitar la portabilidad de los mismos, oponerse altratamiento y solicitar la limitación de éste, Procedencia de los datos: El Propio interesado, Información Adicional: Puede consultarse la información adicional y detallada sobre protección de datos Aquí.
WhatsApp