Torrevieja / Costa Blanca Sur Bungalow · Obra nueva

340.000€
#Ref. NB-41249

Torrevieja / Costa Blanca Sur Bungalow · Obra nueva

  • Precio €340.000
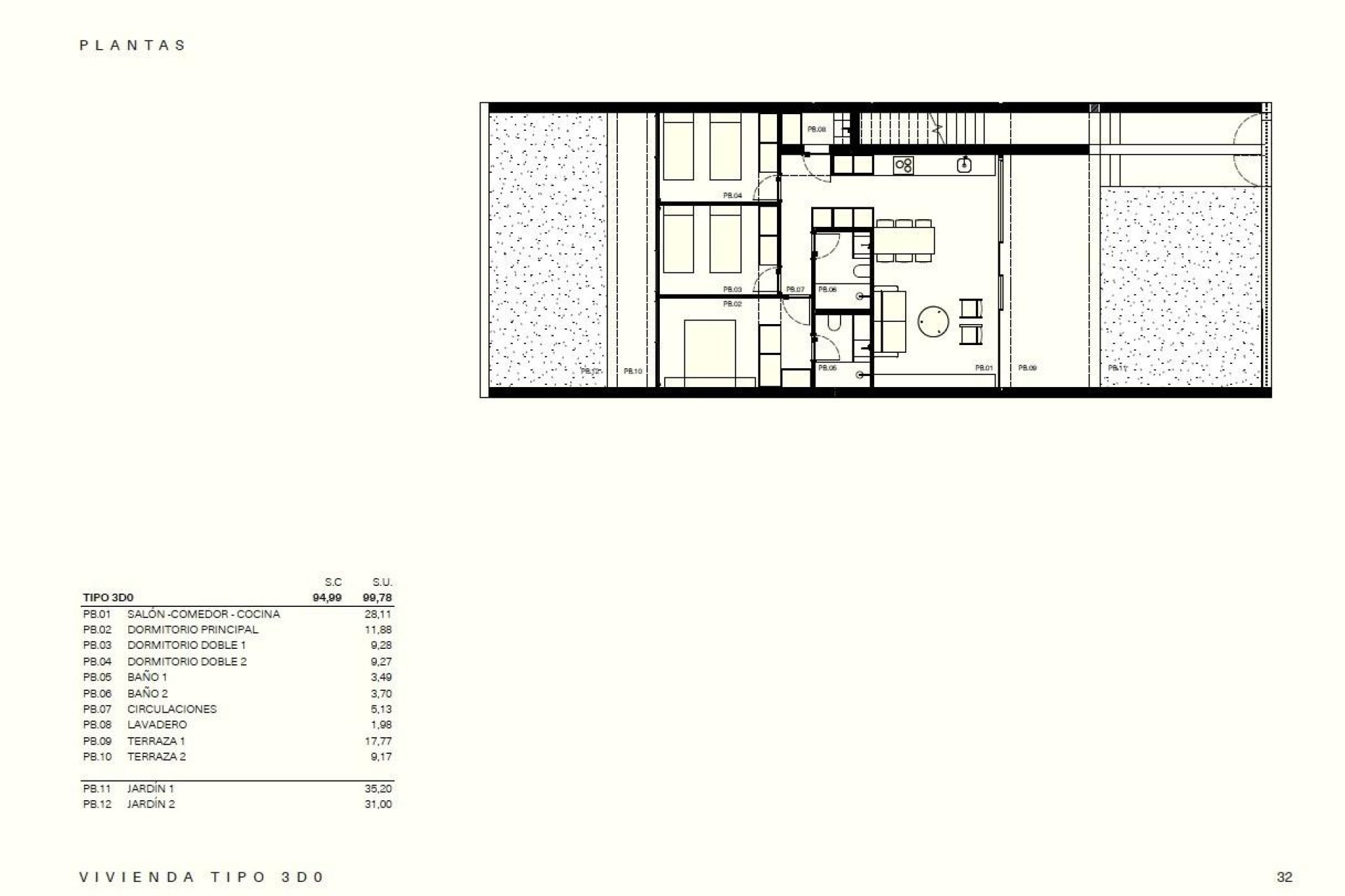
  • Construidos 99 m2
  • Parcela 76m2
  • Habitaciones 3
  • Baños 2
  • Piscina

Apartamentos residenciales de nueva construcción en Los Balcones, Torrevieja

    Ref.:NB-41249
    Bungalow
    Obra nueva

Características

Habitaciones 3
Baños 2
Construidos 99m2
Útiles 94m2
Parcela 76m2
Piscina
Distancia a la playa3500 Mts.
Communal Pool
Gated
Number of Parking Spaces: 1
Near Schools
Near Commercial Center
Double Bedrooms: 3
Location: Coastal, Urbanisation
Air Conditioning: Pre-Installed
Garden
Useable Build Space: 94 Msq.
Terrace: 27 Msq.
Beach: 3500 Meters
Parking - Space
Storage / Trastero

Localización

Realizar una consulta

Responsable del tratamiento: Cosmo Homes 1, Finalidad del tratamiento: Gestión y control de los servicios ofrecidos a través de la página Web de Servicios inmobiliarios, Envío de información a traves de newsletter y otros, Legitimación: Por consentimiento, Destinatarios: No se cederan los datos, salvo para elaborar contabilidad, Derechos de las personas interesadas: Acceder, rectificar y suprimir los datos, solicitar la portabilidad de los mismos, oponerse altratamiento y solicitar la limitación de éste, Procedencia de los datos: El Propio interesado, Información Adicional: Puede consultarse la información adicional y detallada sobre protección de datos Aquí.
WhatsApp