Torrevieja / Costa Blanca Sur Apartamento / piso · Obra nueva

235.000€
#Ref. NB-42020

Torrevieja / Costa Blanca Sur Apartamento / piso · Obra nueva

  • Precio €235.000
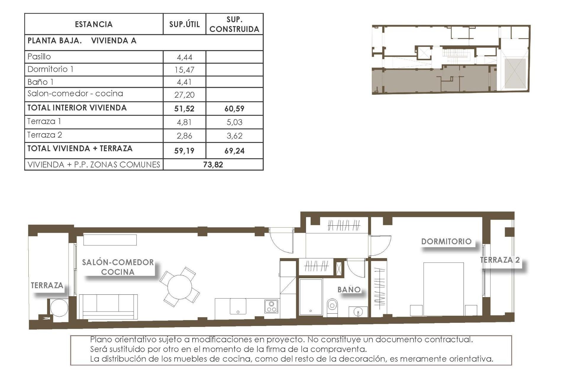
  • Construidos 60 m2
  • Habitaciones 1
  • Baños 1
  • Piscina

Apartamentos de nueva construcción en el corazón de Torrevieja

    Ref.:NB-42020
    Apartamento / piso
    Obra nueva

Características

Habitaciones 1
Baños 1
Construidos 60m2
Útiles 51m2
Piscina
Distancia a la playa150 Mts.
Elevator/Lift
Communal Pool
Gated
Near Schools
Near Commercial Center
Near Bus Route
Air Conditioning: Pre-Installed
Near Childrens Parks
Location: Coastal
Double Bedrooms: 1
Space
Terrace: 7 Msq.
Beach: 150 Meters
Useable Build Space: 51 Msq.

Localización

Realizar una consulta

Responsable del tratamiento: Cosmo Homes 1, Finalidad del tratamiento: Gestión y control de los servicios ofrecidos a través de la página Web de Servicios inmobiliarios, Envío de información a traves de newsletter y otros, Legitimación: Por consentimiento, Destinatarios: No se cederan los datos, salvo para elaborar contabilidad, Derechos de las personas interesadas: Acceder, rectificar y suprimir los datos, solicitar la portabilidad de los mismos, oponerse altratamiento y solicitar la limitación de éste, Procedencia de los datos: El Propio interesado, Información Adicional: Puede consultarse la información adicional y detallada sobre protección de datos Aquí.
WhatsApp