Fuente Álamo / Costa Calida - Inland Villa · Obra nueva

320.000€
#Ref. NB--47465

Fuente Álamo / Costa Calida - Inland Villa · Obra nueva

  • Precio €320.000
  • Construidos 180 m2
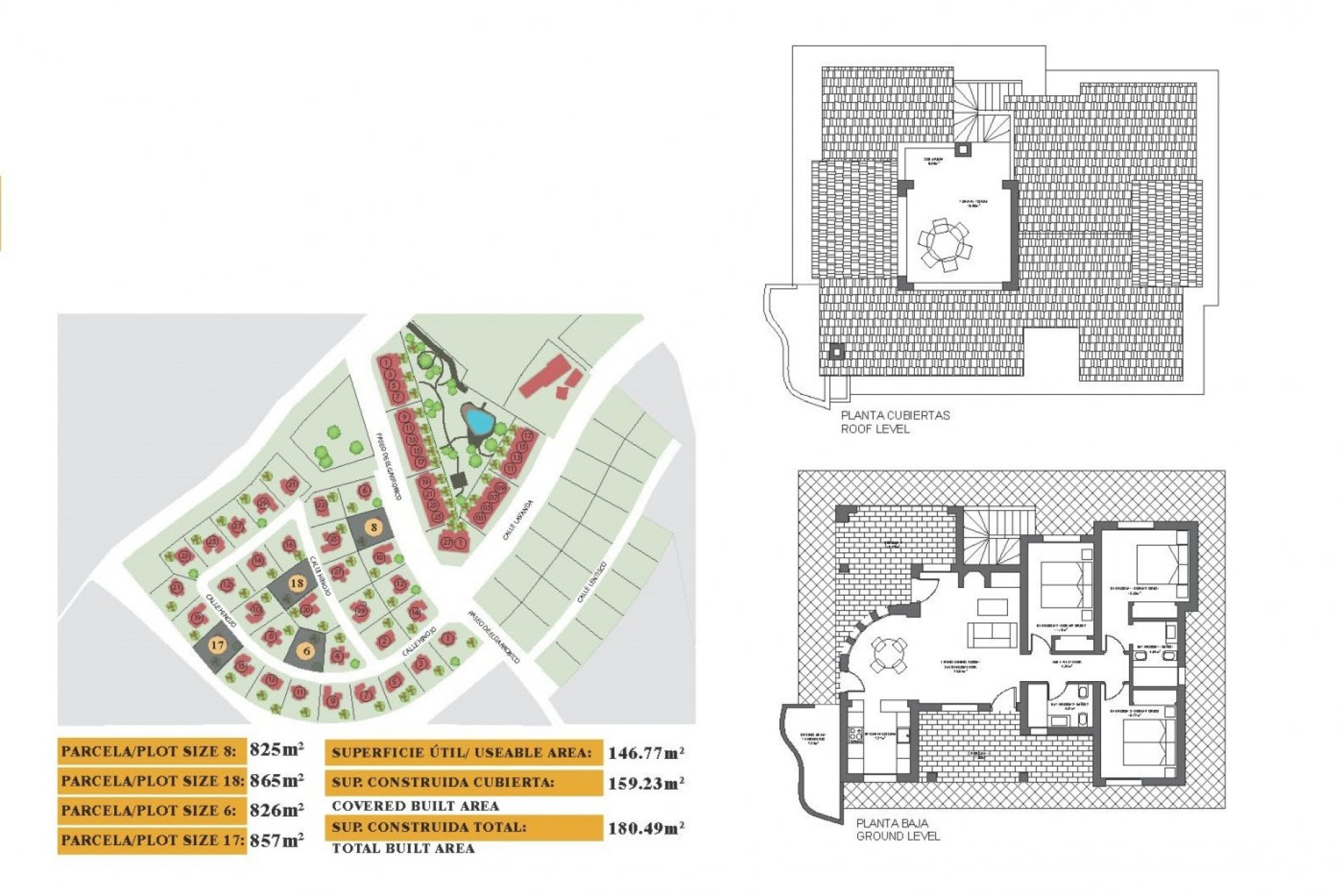
  • Parcela 850m2
  • Habitaciones 3
  • Baños 2

VILLA LLAVE EN MANO EN FUENTE ALAMO, MURCIA

    Ref.:NB--47465
    Villa
    Obra nueva

Características

Habitaciones 3
Baños 2
Construidos 180m2
Útiles 144m2
Parcela 850m2
Distancia a la playa7500 Mts.
Terrace: 45 Msq.
Location: Rural
Useable Build Space: 144 Msq.
Parking - Space
Beach: 7500 Meters
Storage / Trastero
Gated
Number of Parking Spaces: 1
Double Bedrooms: 3
Solarium: Yes
Air Conditioning: Pre-Installed
Garden
Key Ready

Localización

Realizar una consulta

Responsable del tratamiento: Cosmo Homes 1, Finalidad del tratamiento: Gestión y control de los servicios ofrecidos a través de la página Web de Servicios inmobiliarios, Envío de información a traves de newsletter y otros, Legitimación: Por consentimiento, Destinatarios: No se cederan los datos, salvo para elaborar contabilidad, Derechos de las personas interesadas: Acceder, rectificar y suprimir los datos, solicitar la portabilidad de los mismos, oponerse altratamiento y solicitar la limitación de éste, Procedencia de los datos: El Propio interesado, Información Adicional: Puede consultarse la información adicional y detallada sobre protección de datos Aquí.
WhatsApp